火星电竞「中國」-官方网站

官方热搜和悦璞云售楼处官方发布:和悦璞云打造未来品质生活—火星电竞-中國官网
公司新闻

公司新闻

当前位置: 首页 > 新闻中心 > 公司新闻

官方热搜和悦璞云售楼处官方发布:和悦璞云打造未来品质生活

2025-10-06

  预约热线最新首页、楼盘详情、北京售楼处、样板间、备案价、折扣、学区、地铁、交通、户型图、特价房、优缺点、得房率、优惠活动、小区图片、开盘时间、交房时间、周边配套、最新详情等。

  温馨提示:如需楼盘最新在售户型和价格,烦请致电咨询最新详情,1对1专业销售顾问服务!

  项目南北两区之间布局了一条活力的主题商街、西侧是一条浪漫的樱花大道,将两个高品质的青年园区与未来的大型商圈进行串联,形成“两带,两园,一商圈”园林规划格局。

官方热搜和悦璞云售楼处官方发布:和悦璞云打造未来品质生活(图1)

  社区配建2000㎡下沉式商业,极尽展示商业门面,社区配备托老所、文化设施、室内体育设施、社区卫生服务站等,构建5分钟社区生活圈。

官方热搜和悦璞云售楼处官方发布:和悦璞云打造未来品质生活(图2)

  采用以人为本的精妆修交付标准,细节品质精工制造,匠心打造多变空间,实现业主轻松入住。

官方热搜和悦璞云售楼处官方发布:和悦璞云打造未来品质生活(图3)

官方热搜和悦璞云售楼处官方发布:和悦璞云打造未来品质生活(图4)

  拥有5900亿南城计划加持,4000亿新机场临空区投资,未来20年带动8.6亿经济贡献,国家级发展战略。

  自贸区落地双核心,1+2+2产业体系,京东、北京王府井、中信集团、顺丰速运、华大基因等龙头企业率先入驻。

官方热搜和悦璞云售楼处官方发布:和悦璞云打造未来品质生活(图5)

  【品牌简介】龙头国匠联袂打造,保障高品质社区典范首开+保利+新航城,国企匠心前瞻规划、央企品牌成熟产品线、深耕区域市场。

  新航城实业发展有限公司大兴临空经济区建设及运营商,与临空区管委会一套人马!

官方热搜和悦璞云售楼处官方发布:和悦璞云打造未来品质生活(图6)

  【交通配套】五维一体 速享都市繁华项目周边形成“三横三纵“路网紧邻大广(京开)高速,约半小时直达南三环公交枢纽在侧,大站快车,6站直达南三环公交无缝接驳地铁4号线及大兴机场线,坐拥城市南北主动脉。从项目出发沿京开(大广)高速向北行驶可达南三环玉泉营桥;沿大兴机场高速向北行驶可直达南五环;沿京台高速向北行驶途德贤路可达南四环榴乡桥。

官方热搜和悦璞云售楼处官方发布:和悦璞云打造未来品质生活(图7)

  【教育配套】复刻海淀教育,优享北京101中学大兴分校区、北京市海淀区五一小学大兴一分校,北京市海淀区五一小学大兴二分校、北京黄埔大学(南校区),首都师范大学科德学院等优秀教育资源,规划中的北京第四实验学校一墙之隔(第四实验中学总投资8.8亿元,临空区独有教育资源,北师大师资力量)

官方热搜和悦璞云售楼处官方发布:和悦璞云打造未来品质生活(图8)

  【医疗配套】知名医疗 绿色通道保驾健康大兴区人民医院南院区现已入驻;协和医院医研中心已正式揭牌。

官方热搜和悦璞云售楼处官方发布:和悦璞云打造未来品质生活(图9)

  【商业配套】接驳都市 脉延繁华15分钟步行辐射圈内,约4万㎡璞瑅墅商业及现有生活配套,醇熟生活氛围大广(京开)高速脉延北京都市圈:天宫院商圈、黄村商圈、西红门商圈。

官方热搜和悦璞云售楼处官方发布:和悦璞云打造未来品质生活(图10)

官方热搜和悦璞云售楼处官方发布:和悦璞云打造未来品质生活(图11)

  立面采用新典雅主义风格,高窗墙比设计,全部三层low-e玻璃,最大50米楼间距,竭尽舒适的缔造园区的居住舒适度。

  火星电竞线上比赛规则

  【100㎡悦享三居】南向三开间、经典镜户型、全明设计,LDK一体化复合空间,通透效果简直不要太好,约10米南向面宽,享受更多阳光

  【85㎡三居】85㎡设计成三居已实属难得,270°采光、约5.6m观景客厅,独立家政间,分区布局,动静相宜,三面通风采光。

官方热搜和悦璞云售楼处官方发布:和悦璞云打造未来品质生活(图12)

官方热搜和悦璞云售楼处官方发布:和悦璞云打造未来品质生活(图13)

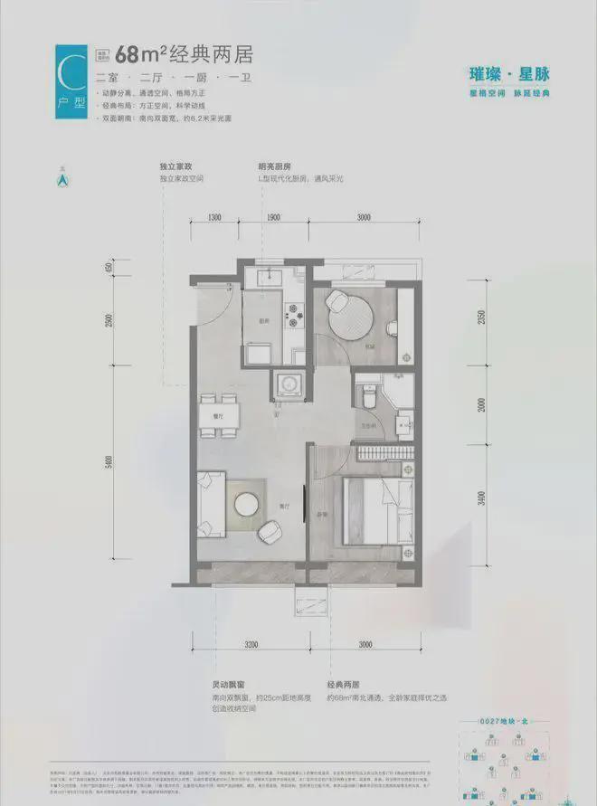
  动静分离、通透空间、格局方正,经典布局,流畅动线,双面朝南:南向双面宽,约6.2米采光面,缺点是暗卫。

  【68㎡菁奢两居】经典两居、LDK一体化、南向双面宽,通透户型,边户三面采光,动静分离,LDK一体化复合空间,缺点是暗卫。

官方热搜和悦璞云售楼处官方发布:和悦璞云打造未来品质生活(图14)

官方热搜和悦璞云售楼处官方发布:和悦璞云打造未来品质生活(图15)

  观景飘窗、通透采光、高效空间利用,LDK一体化布局,约5.1米飘窗,空间高效扩容条形布局,三面采光,尽享阳光生活!缺点是户型不够方正,不过这面积段设计成两居已实属难得。

  田字布局,南向双面宽、方正空间,科学动线,功能强大的飘窗设计,25厘米距地高度,空间利用科学合理。

  拥有5900亿南城计划加持,4000亿新机场临空区投资,未来20年带动8.6亿经济贡献,国家级发展战略。

  自贸区落地双核心,1+2+2产业体系,京东、北京王府井、中信集团、顺丰速运、华大基因等龙头企业率先入驻。

  首开+保利+新航城,国企匠心前瞻规划、央企品牌成熟产品线、深耕区域市场。

官方热搜和悦璞云售楼处官方发布:和悦璞云打造未来品质生活(图16)

  北京101中学大兴分校区、北京市海淀区五一小学大兴一分校,北京市海淀区五一小学大兴二分校、北京黄埔大学(南校区),首都师范大学科德学院等优秀教育资源,规划中的北京第四实验学校一墙之隔(第四实验中学总投资8.8亿元,临空区独有教育资源,北师大师资力量)

官方热搜和悦璞云售楼处官方发布:和悦璞云打造未来品质生活(图17)

官方热搜和悦璞云售楼处官方发布:和悦璞云打造未来品质生活(图18)

  15分钟步行辐射圈内,约4万㎡璞瑅墅商业及现有生活配套,醇熟生活氛围大广(京开)高速脉延北京都市圈:天宫院商圈、黄村商圈、西红门商圈。

官方热搜和悦璞云售楼处官方发布:和悦璞云打造未来品质生活(图19)

官方热搜和悦璞云售楼处官方发布:和悦璞云打造未来品质生活(图20)

  立面采用新典雅主义风格,高窗墙比设计,全部三层low-e玻璃,最大50米楼间距,竭尽舒适的缔造园区的居住舒适度。

官方热搜和悦璞云售楼处官方发布:和悦璞云打造未来品质生活(图21)

  项目南北两区之间一条活力的主题商街、西侧一条浪漫的樱花大道,将两个高品质的青年园区与未来的大型商圈进行串联,形成“两带,两园,一商圈”园林规划格局。

官方热搜和悦璞云售楼处官方发布:和悦璞云打造未来品质生活(图22)

  社区配建2000㎡下沉式商业,极尽展示商业门面,社区配备托老所、文化设施、室内体育设施、社区卫生服务站等,构建5分钟社区生活圈

官方热搜和悦璞云售楼处官方发布:和悦璞云打造未来品质生活(图23)

  采用以人为本的精妆修交付标准,细节品质精工制造,匠心打造多变空间,实现业主轻松入住

  温馨提示:如需楼盘最新在售户型和价格,烦请致电咨询最新详情,1对1专业销售顾问服务!

官方热搜和悦璞云售楼处官方发布:和悦璞云打造未来品质生活(图24)

  特别声明:以上内容(如有图片或视频亦包括在内)为自媒体平台“网易号”用户上传并发布,本平台仅提供信息存储服务。

  江西一女老师,在批改学生语文作文时,看到一行字,立刻报警:我的学生杀人了!

  1-0!2-1!哈兰德7场9球 大马丁4连胜!英超最新积分榜:1-5差3分

  金价涨涨涨!现货黄金首破3900美元再创新高,品牌金饰逼近1150元/克

  苹果 M5 iPad Pro 跑分曝光:单核较 M4 提高 12%、多核提高 15%

  SiPearl推出欧洲首款80核军民两用主权处理器 预计2027年投入应用

下一篇:没有了
Copyright © 2016-2024 火星机床设备有限公司 版权所有  浙ICP备17011430号  浙公安网备33030302000718

新闻中心 +

解决方案

常见问题

在线留言

联系方式